Beläget i det lugna och eftertraktade området Sol de Mallorca, bara 20 minuter från Palma de Mallorca, består detta projekt av tre moderna villor med privata pooler, som för närvarande är under uppförande. Varje bostad präglas av en modern arkitektur med rena linjer, kompletterad med element i natursten och unika planlösningar.
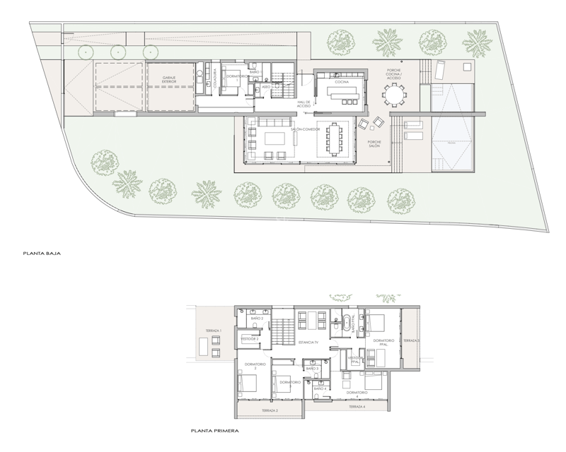
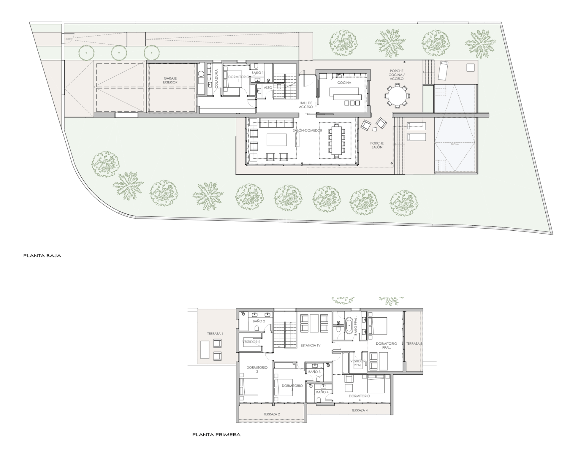
Denna villa erbjuder 345 m² boyta fördelat på två våningar, med 5 sovrum, alla med egna badrum, inbyggda garderober och tillgång till terrass. Den övre våningen innehåller 2 mastersviter med klädkammare och stora terrasser, plus ytterligare två sovrum, medan det femte sovrummet ligger på bottenvåningen. Ljusa vardagsrum och matsalar vetter mot terrasser, en anlagd trädgård och en privat pool, med havsutsikt från båda våningarna.
Köket är fullt utrustat med en köksö och högklassiga vitvaror, med direkt utgång till terrassen. Ytterligare funktioner inkluderar golvvärme, luftkonditionering, värmepump, solpaneler, smarta hemsystem, larm och parkering för 2 bilar. Nära stränder, golf, skolor och marinor som Puerto Portals och Port Adriano, vilket gör detta till ett perfekt ställe att bo på året runt.














