Call +34 871 853 907

New Build Townhouse with Plunge Pool for Sale in El Terreno

Townhouse El Terreno
  • 183
  • 2
  • 3
Print
Image whatsapp
REF-30810
ASKING PRICE
€1,050,000

About this property

This exclusive new development consists of only 10 townhouses which all enjoy beautiful sea views across the Bay of Palma and are located in El Terreno one of the best neighbourhoods in Palma, all fitted with high quality materials.

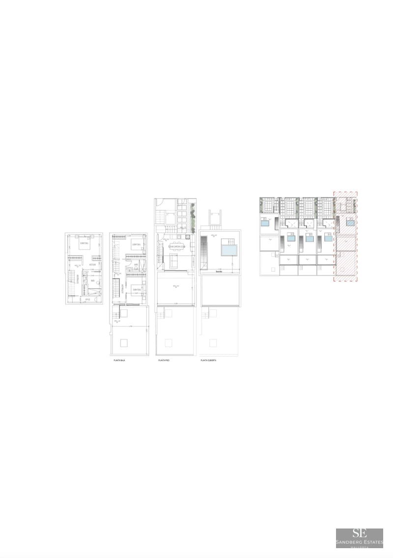
The houses are distributed over 3 floors and offer plenty of spacious terraces, a patio with a variety of Mediterranean plants, a roof top lounge area with plunge pool which offer stunning views to the Bay of Palma and the city.

This townhouse offers an open-plan living and dining area with a fitted kitchen, 3 bedrooms, 2 bathrooms one being en suite, an office, a spacious terrace, garden and a roof terrace with a plunge pool enjoying spectacular sea views.

The house also comes with 1 underground parking space included in the price.

Additional features: air conditioning h/c, underfloor heating, wooden/natural stone floor and a fully equipped kitchen. 

Features

GardenLaundry RoomNew BuildUnderfloor HeatingUnderground ParkingParkingAir ConditioningSea ViewSwimming Poollabels.Underfloor heating

Energy Certificate

A+
A
B
C
D
E
F
G
schedule
Pending
Phone
Enter your phone number without the country code
0 / 500
By scheduling a visit, you agree to be contacted by our agent to confirm the appointment details.
Loading....