Opportunité d'investissement unique
Ce terrain exclusif est situé dans le quartier populaire de Genova et offre une superficie d'environ 1 286 m2.
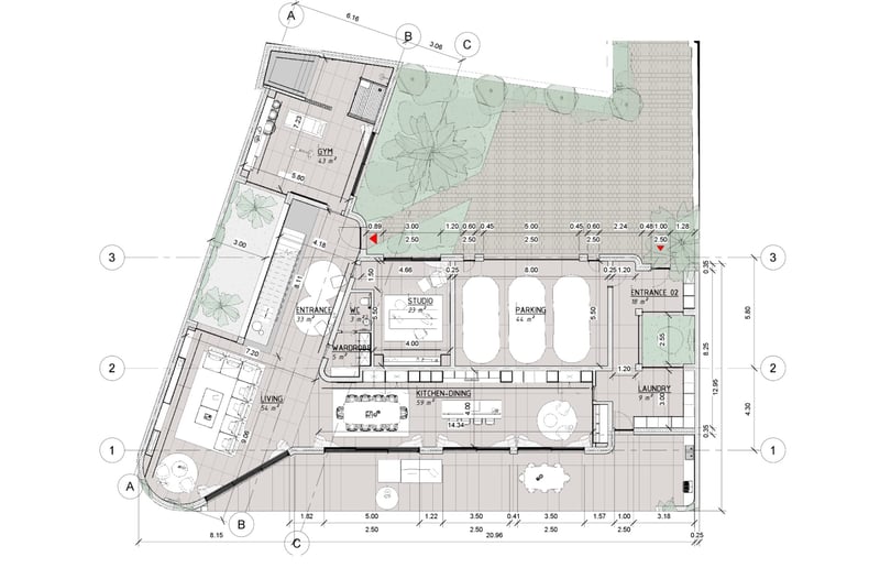
Un projet pour la construction d'une villa de luxe existe déjà.
Le projet comprend :
Une propriété spacieuse avec 4 chambres et 4 salles de bain doit être construite sur une surface bâtie d'environ 812 m2.
Une terrasse d'environ 212 m2 et une piscine d'environ 52 m2 vous inviteront à la détente.
Saisissez votre chance et construisez votre propre oasis de bien-être selon vos souhaits dans un emplacement parfait.
Nous serons ravis de vous conseiller !



















































